


同恩牌热泵干燥机是一种利用热泵原理集除湿、加热,排湿于一体的新型节能智能化干燥设备,来除去空气中所含水份,降低空气湿度,此设备不受外界环境温度湿度影响,适合各地区使用要求。机器采用我公司回热循环热泵除湿方式,拓宽了除湿机在工业干燥领域的应用,干燥性能比普通热泵除湿干燥节能30%以上,大大节约运行费用;中高温干燥方式(常温~70℃),接近自然干燥,被干物品的品质好、色泽好、产品等级高,无污染,而且***环保卫生要求。干燥过程中物料不变形、不开裂、不变色、不变质、不氧化、干燥彻底、干燥后复水性好、营养成分损失少,储存期长,比任何传统干燥设备更有效地保护干燥物的色、香、味、个体形态和有效成分。采用送风循环脱水并实现物料快速干燥。机组采用触摸屏全自动控制方式(带有温湿度设定,机器故障显示及工作模式和设定定时开关机、循环开关机以及时空模式等),性能稳定,操作方便。根据客户需要,可设定不同干燥曲线,满足不同种类物料干燥,具有适用范围广,干燥效果显著,外形美观,结构紧凑,功能齐全,运行宁静,机组独立放置在库房外,易维护及操作,延长设备使用寿命。

★ 同恩牌热泵干燥机在相对湿度为10%~90%范围内,控制环境温度在常温~70℃能正常干燥物料。
一、产品特点
★ 干燥节能
同恩牌热泵干燥机采用谷轮或大金压缩机,采用热泵技术,节能脱水,使得干燥效率大大提高,特别是在高温状况下干燥物料,有很高的能效比
★ 安装、控制、维护简单。
结构紧凑、易于安装。
触摸屏全自动控制,可实现机组的联动控制。
★ 可靠性高
主机采用加强结构设计,可延长使用寿命。
机身内外所有部位均采用喷塑处理,不仅美观,更能防锈防腐。
加大风机组轴径以及耐高温材料,增加其运转稳定性及寿命。
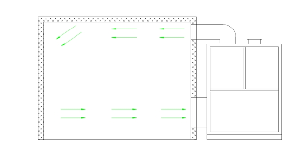
二、工作原理
干燥机工作系统分为两部分
1、干燥脱水部分
由压缩机、冷凝器、膨胀阀、蒸发器、换热器及连接管道组成,低压制冷剂气体由压缩机吸入,压缩成高压气体,进入冷凝器并放出热量,经冷凝器冷却成液体,然后经过过滤器毛细管节流成低压、低温的气液混合物进入蒸发器,由蒸发器蒸发为气体,吸收空气中的热量,再回到压缩机。制冷剂工质在制冷系统内这样反复循环,由风机带动干燥房内含水空气经冷冻结露后在经过热还原提升温度,变成高温干燥风送入干燥房干燥物料,循环送风和脱水,达到干燥物料的目的。
2、干燥房控温
干燥房热空气对物料进行加热,吸热后物料表面水分汽化成水蒸汽,湿热空气经回热器降温(显热)至接近空气露点温度;降温后较饱和空气经过蒸发器,空气进一步降温至露点温度以下,空气中水蒸汽冷凝并释放冷凝潜热,空气经过蒸发器降温脱湿而达到除湿干燥目的;经过蒸发器降温脱湿后低温饱和空气后进入回热器低温侧,与高温侧进行热交换后升温;经过回热器低温侧后进去空气冷凝器吸收制冷剂冷凝过程释放热量进一步加热;热空气由主风机送入干燥房进入下一循环。

高温热泵干燥除湿机
项目 | 单位 | TE12GRCJ | ||
名义脱水量 | Kg/h | 60 | ||
名义制热量 | Kcal/h | 35296 | ||
机组额定功率 | kW | 13.44 | ||
电加热功率 | kW | 20 | ||
机组最大功率 | kW | 33.44 | ||
压缩机 | 型式 | 全封闭柔性涡旋式 | ||
启动方式 | 交流接触器启动 | |||
功率 | kW | 2*5.42 | ||
送风机 | 型式 | 高温轴流式 | ||
功率 | kW | 1.5 | ||
循环风量 | m3/h | 5500 | ||
排湿风机 | 型式 | 离心式 | ||
功率 | kW | 1.1 | ||
循环风量 | m3/h | 2500-4500 | ||
冷媒 | R134a | |||
干燥房控制温度 | 常温—70℃ | |||
电源 | 380V 3N~ 50Hz | |||
干燥控制模式 | 定值、曲线 | |||
设备功能 | 除湿、排湿、升温、恒温 | |||
控制系统 | 触摸屏 | |||
底盘排水口 | mm | 15 | ||
机身尺寸 | 高度 | mm | 1910 | |
深度 | mm | 1450 | ||
宽度 | mm | 1030 | ||
净质量/毛质量 | kg | 550 | ||
保护 装置 | 过电流保护、高低压保护,相序保护、 压缩机内置高温保护、延时启动保护 | |||
备注:以上技术参数仅供参考,以实体机铭牌为准!